
舒展,河南郑州人、党员。现为山东省聊城大学美术学院2017级硕士研究生,攻读艺术设计专业,环境设计方向,师从傅金辉老师,研二期间担任美术学院艺术设计专业班委。
个人荣誉
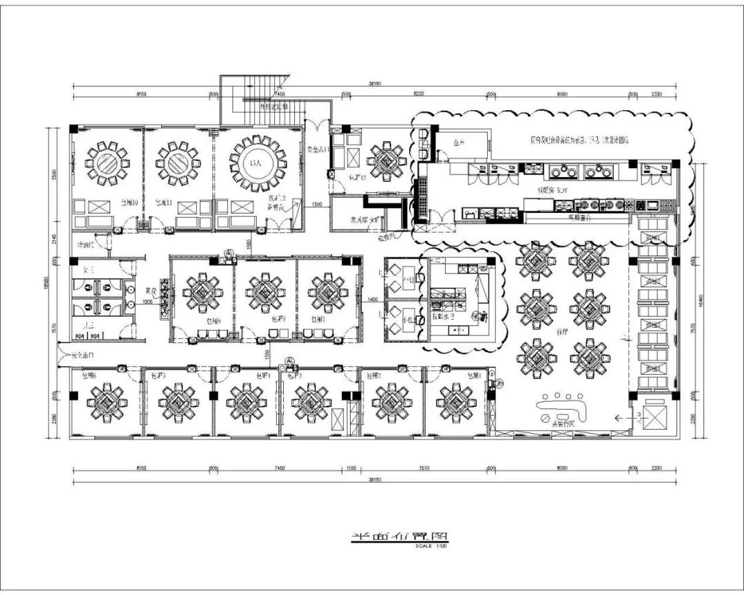
1、2019亚太设计师大赛学生组“餐饮空间方案类”一等奖
2、第六届“中装杯”全国大学生环境设计大赛--施工图设计类三等奖
3、聊城市第三届青少儿电视书画展“优秀指导教师”
4、美术学院学生党支部“庆祝改革开放40周年”作品展二等奖
5、多个室内空间设计作品投稿于设计平台被录用
6、研究生假期与实习期间在河南中州建筑有限公司参与工程项目
7、在校期间获得SYB创业培训资格证
2019亞太設計師大賽頒獎盛典暨G8國際設計論壇千人盛會
11月27日,2019亞太設計師大賽頒獎盛典暨G8國際設計師論壇千人盛會在中國深圳大中華喜來登酒店隆重舉行,活動現場高朋滿座,勝友如雲。大賽由香港室內設計師協會、亞太設計師大賽組委會主辦,國際30多家權威協會聯合協辦。
亞太設計師大賽每年舉辦一屆,以香港為中心,覆蓋全球,規格高、影響力大、公信力強。受到義大利、英國、美國、法國、德國、澳大利亞、加拿大、新加坡、馬來西亞、泰國、日本、韓國、港澳臺、中國大陸等不同國家及地區設計師的青睞,被推崇為全球最具影響力的設計大賽之一。活動現場座無虛席,15家著名電視台,100多家主流媒體,深港兩地權威報刊,世界各地設計大咖雲集,近1000人共同見證設計師最高榮譽。



代表作品
【餐饮空间】











(编辑人: 邢文翠 常 钺 李 丽)

